| Costco“公寓”真来了,租房送会员、下楼逛超市 | ||
|
www.bcbay.com | 2025-01-27 15:54:55 淘啦旧金山湾区华人资讯 | 0条评论 | 查看/发表评论 |
|
|
|
|
||
|
房租昂贵、房源紧缺早就是每一个加州人的噩梦了。 看准这个情况,美国大型连锁超市Costco野心勃勃地想要进军房地产:在超市上面盖公寓! 终于,Costco的第一栋“公寓+超市”将要在洛杉矶动工了,公寓究竟长什么样? 一起来看看吧~ * 图源nypost 01 下楼就能买1.5美元的热狗, “Costco经济适用房”真的来了! Costco的第一栋公寓将会坐落在南洛杉矶Baldwin Village的La Brea Avenue与Coliseum Street交叉口附近一块5英亩(地块前身是一家医院)的商业地块。项目将由开发商Thrive Living and Architects AO构建,从2025年初建造至2027年。 大楼的第一层为Costco超市,超市上面会建造800套公寓房。其中184套专门用于低收入租户的住宅,月租金加水电费定价为1,040美元,适合年收入低于41,610美元的家庭。 * 屋顶自带800套公寓的Costco设计图。图源KTLA * 图源dailymail * 图源KTLA “Costco公寓”在设施方面将配备:
租“Costco公寓”可能会获得的业主福利包括:
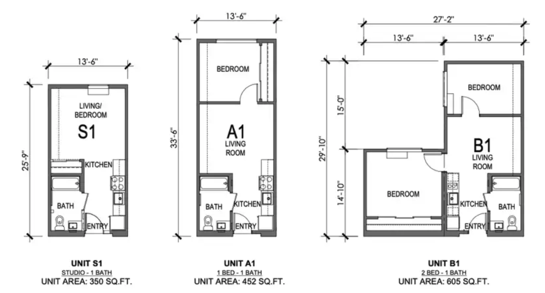
02 密密麻麻的房间 住房活动家Joe Cohen在X上透露了楼层平面图,表示:“长走廊上排列着许多小的住宅单元,有个巨大的娱乐中心作为休闲空间。平面图上看有点像老式监狱的设计。” 房型有Studio、1B1B、2B1B,面积从350-605平方英尺。 为何要如此设计?Cohen称是为了监管套利。 Costco想在南洛杉矶开个门店,但是新建大型商店往往很难获批,审查程序昂贵而冗长,而且结果还并不确定。但根据州法律 (AB 2011),符合某些标准的混合用途住房项目将自动免于自由裁量审查。所以这批“Costco区房”相当于明面上建公寓,实为开新店。 根据州法,这185,000平方英尺的面积中至少有三分之二分配给住房的话,Costco的建设就能更快、更便宜。 * 图源newsx 网友热评 # 下楼就能买1.5美元的热狗,谁能不爱呢 # 所以……每隔一天,就会有卡车在奇怪的时间驶来,成千上万的人从家门口经过,还有额外的噪音,而且天知道你得把自己的车停在哪里。听起来是个相当愚蠢的想法。 # 他们会为居民造停车场吗?还是只能在停车场里转悠抢车位? # 智能,节省空间,住顶上更好。这可能是房屋所有权的新思路,是实现梦想之家的一步。除了停车之外,我看不出有什么问题,但如果你在那工作和生活,可能不需要汽车,还有公交线路?双赢。 # 全部将由Blackrock购买,租金为每月5000美元+水电费 # “15分钟都市圈”要来了!这会让每个人都胖起来的。 # 以后这就是我们的保安: # 就是我们先进的热狗交付系统 对于Costco的这个公寓你怎么看? 你会想要住在Costco楼上吗? 欢迎留言 End Ref参考文献: https://ktla.com/news/local-news/costco-with-800-apartment-units-built-on-top-could-be-coming-to-south-los-angeles/ https://www.dailymail.co.uk/real-estate/article-14263881/Major-city-tackles-housing-shortage-building-800-apartments-Costco-superstore.html https://www.globest.com/2025/01/06/developer-plans-800-apartments-above-costco-including-low-income-units/?slreturn=20250126102754 https://retailwire.com/costco-thrive-los-angeles-affordable-housing/ |
||
|
|
|
|
|
|
| 24小时新闻排行榜 |
| 1 | “不要指望再降息”!加拿大更大暴击来了 |
| 2 | 华人老夫妇惨遭西捷航空轰下飞机! 还被“软 |
| 3 | 赶走租客不及时入住 大温房东赔惨 |
| 4 | 马斯克公开认错 求和内幕曝光!加美取得进 |
| 5 | 重磅!“加拿大强通行证”这天生效 大把免 |
|
|
|
| 48小时新闻排行榜 |
|
|
| 最新专稿 | 更多>> |
| 专栏作者 |
| 1 | 正月十五 | 2 | 心宇 | 3 | 秋枫 |
| 4 | 上官天乙 | 5 | 荷莲耦园夏 | 6 | 郭歌华 |
| 7 | 温暖 | 8 | 木木 | 9 | 张酒阁 |
| 10 | 卡宾 | 11 | 罗文 | 12 | 英子 |
|
|
|||||
| 热门专题 |
| 1 | 美加贸易战 | 2 | 川普 | 3 | 乌克兰战争 |
| 4 | 卡尼 | 5 | 博励治 | 6 | 加国大选 |
| 7 | 特鲁多 | 8 | 美国大选 | 9 | BC省选 |
|
|
|||||
|
|
|

0